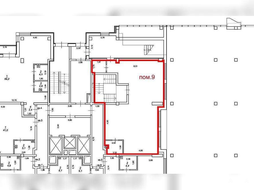
Продажа помещения свободного назначения

14 810 000 ₽

116 066 ₽ за м²

128 м²
Площадь
5/23
Этаж

Поделиться

Добавить в избранное

Реализуется коммерческое помещение свободного назначения которое находится в ЖК «НЕВЕЛЬСКОЙ»Дом комфорт класса. Продажа от застройщика по прямому договору купли продажи. Цена указана с учетом НДС.
Это идеальное решение для различных видов бизнеса: Офис с открытой планировкой. Коворкинг-пространство для организации мест для фрилансеров и стартапов. Салон красоты по оказанию косметических процедур. Есть выход на террасу.
Помещение находится в жилом комплексе, что гарантирует высокий трафик потенциальных клиентов дома, а также соседних домов.

Дата обновления: 16 декабря 2025